如何把家裝修成b舒服的地方。
又一個無意中被點贊到爆的回答...收集整理一下轉到專欄來吧
建築面積54.65,實際使用面積40左右吧。15年前的老房子 幸運的是從來沒有裝修過 沒有破懷過任何結構和牆體~ 無任何硬裝/ 未鋪地板 只有一層髒兮兮的地毯 / 沒有布線 所有的線路都是裸露在外 / 沒有改過水管 最老最老的那種鍍鋅鐵管 / 甚至沒有封陽台的窗戶…這可是25樓….





照明排風系統圖
因為對房子足夠的熟悉~ 早已對每一個角落熟記於心.所以差不多一個晚上就把所有的設計稿全部搞定~ 和最終的方案還是有一些差別的~ 也懶得再去改稿子了~ 裝修設計稿就是在裝修中去修改的稿子…..拆舊的過程就不去複述了~ 很簡單~ 砸砸砸~ 在確認過原始設計稿後 在合理的基礎上進行房間尺寸的調整是很有必要的~
上點小照片~堆積如山的建築垃圾~ 估計到裝修結束 一共丟出去上百袋建築垃圾…

上海很多人家都沒有考慮過地暖~ 實際上這是很環保節能的東東~ 空調吹風很容易生病
日常使用費用和空調+電暖器的費用差不多~ 而且是一勞永逸的辦法~ 十分推薦裝


每個人家裡都有~ 但是幾乎沒有人關注過~ 斷路器~
需要根據家中的用電量峰值進行詳細的計算~ 因為家中有地暖~ 考慮到最高峰值就買了63A的總開後面 照明/客廳/廚房/浴室/卧室/地暖 每一路都有單獨的斷路器來控制~ 如果出現問題 很容易就可以排查出來~
家中門口有一個直角牆~ 正對大門~ 如何讓他看起來更協調呢~
解決辦法就是把她做成弧線的~~ 最終效果很是滿意~來點過程合集:











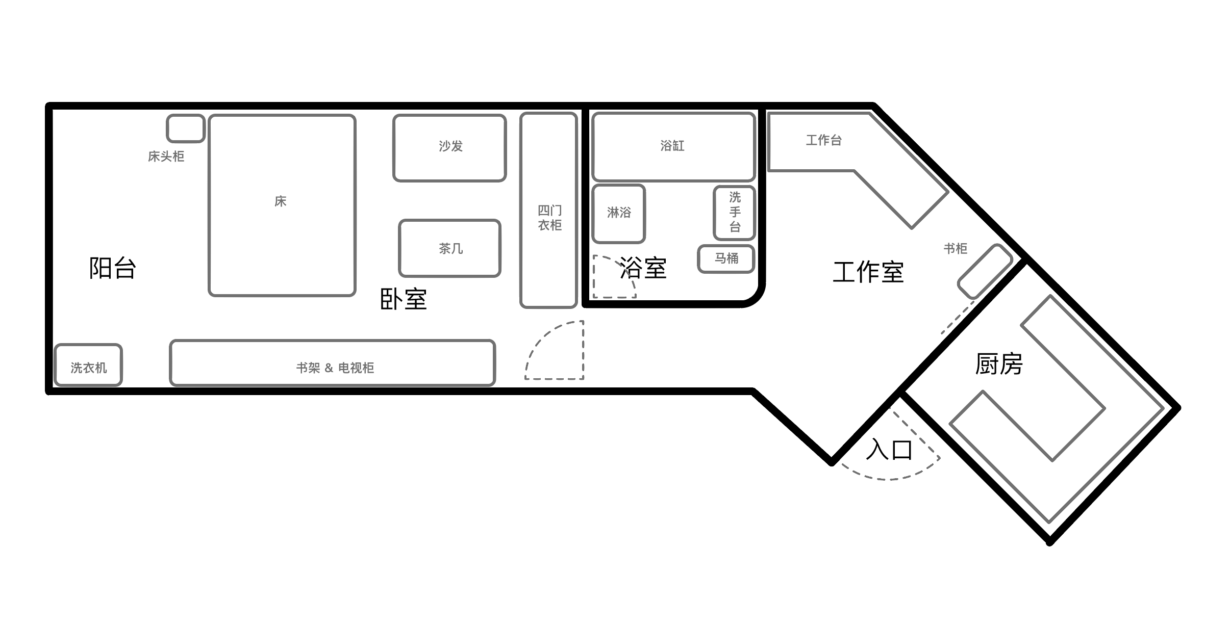
很多人問洗衣機,衣櫃,臨時草繪了一張示意圖。自己參考吧。
充分的利用每一厘米,床下,衣柜上,電視櫃等都有很多空間可以利用~
加油吧!

Done.
--------------------------------------------------------------------------------------------
著作權歸作者所有。商業轉載請聯繫作者獲得授權,非商業轉載請註明出處,並附有專欄鏈接。作者:token胡依林新浪微博 : @TOKEN胡依林 http://weibo.com/tokenx知乎專欄:http://t.niu.com (短域名跳轉)-------------------------------------------------------------------------------------------
推薦閱讀:
※25 款餐廳設計靈感!創造不想起身的美味空間
※80後改造80年老房,用復古孔雀綠打造了遠勝大白牆的美
※案例get| 日本浴室、廁所及洗手台三分公寓
※你們旅行中見過哪些特色酒店呢 ?有些酒店的裝修設計真的眼前一亮,你也來分享一下吧







