看完此別墅你會愛上中式風!白牆黛瓦+室內庭院,美到令人驚艷!
06-03
看完此別墅你會愛上中式風!白牆黛瓦+室內庭院,美到令人驚艷!
推薦閱讀:
來自專欄鄉墅
看完這棟別墅,你絕對會愛上中式別墅,一直以來歐式別墅佔據了農村房子99%的市場。隨著近些年來中式元素重回人們的視野,中式建築的獨特美逐漸被人們發掘。越來越多的人蓋起了中式別墅。

別墅正面效果圖
湖南吳先生,想要蓋雙拼別墅,二棟房屋一模一樣只設計一家。因為一直有關注,看到之前發布的編號為TC254的別墅,要求我們按照這個風格設計,外觀簡潔大方有味道。
別墅背面效果圖
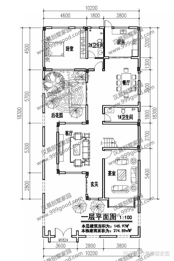
開間10.2米,進深18.3米,佔地面積為145平米,總的建築面積為 274平米
別墅總功能設有 4卧室、1客廳、1餐廳、1廚房、4衛生間、2書房、1茶室、1影音室、1陽台、1露台。

別墅鳥瞰圖
一般類似這種中式徽派別墅帶有院子才好看,將生活寄於庭院之中,才能達到中式別墅的意境。
開間不算大,入戶是院門,種上綠化帶之後的庭院更美。正屋進門是玄關,開放式的客廳緊鄰茶室,其實兩功能是一樣的。

二層露台上能夠一覽院子裡面的美景,卧室比較集中相互之間可以照應。影音室和小型的書房合併為一體,節省空間。

根據布局結構設計成的屋頂,形式比較獨特,中間有一段不能上人的平屋頂,可以房太陽能

根據咱們這棟別墅戶型設計而來,外觀差別不大,裡面的結構卻不同。


編號:TC254;佔地面積:143.19平方米;建築面積:265.3平方米;開間尺寸:11.5米;進深尺寸:16.6米,主體參照造價:25萬
推薦閱讀:
